Club Kegerator
Arrive to the show in style with this homebrew club kegerator build.
What would prompt a group of homebrewers to build a system that can dispense 11 different beers at the same time? For the past 10 years, the Carolina BrewMasters (a homebrew club from Charlotte, North Carolina) has organized a beer festival known as “Charlotte Oktoberfest.” In 2007, over 6,000 beer lovers attended and sampled from over 240 homebrewed and commercial beers. The event raised over $50,000 for charities, including the Multiple Sclerosis Society and the Juvenile Diabetes Research Foundation.
Serving 25–35 5.0-gallon (19-L) Cornelius kegs of homebrew to thirsty event patrons over a 6-hour period was becoming increasingly problematic. With a desire to showcase club homebrew at the festival, the organizing committee agreed to fund the materials to build a custom festival draft dispensing system. Two design plans were proposed to the committee. The design selected is actually the smaller of the two! It was quickly determined that the larger design, although impressive, would have blown the budget. So, it was shelved for the smaller design that was approved and has come to be known as “Junior.”
The call was put out to Carolina BrewMasters for parts donations. The local Charlotte homebrew shop (Homebrew.com) came through and donated a great many of the draft parts needed. Long time club members Scott Wallace and David Jones stepped up to assist with the build. If you are considering building a similar system of this kind, support cannot be underestimated!
Build Your Own Club Kegerator

Overall System Design Features
• Lift-off draft towers and bar top with folding bar base. 
• 8 Ventmatic forward-sealing stainless steel faucets. Stainless steel shanks and tail pieces. 
• 2 stainless steel stout faucets for the dispensing of stouts and porters with beer gas (85% nitrogen – 15% CO2). 
• 2 oak “Irish Coffin” style draft towers. 
• Rolling oak cart to support the CO2 and beer gas tanks. 
• Redundant CO2 manifolds with shut-off valves and back flow preventers for each line. 
• Extra large tubs to hold up to 5 pin-lock or 6 ball-lock kegs on ice each (Note: ball-lock kegs are typically narrower than pin lock kegs). 
• Rolling tub carts for mobility. 
• 2 self-draining stainless steel drip trays under the faucets — a drain hose runs from the drip plates through bar top to small plastic containers that sit beneath the rolling carts. It’s maintenance free. 
• Quick setup and portability — the bar breaks down and folds to permit transport in the bed of a full-sized pickup truck.
Draft System Parts List
• (8) Ventmatic forward-sealing stainless steel faucets 
• (2) stainless steel stout faucets 
• (1) Chromed tap and faucet tower for “The Hopinator” 
• (10) 2 1⁄2” beer shanks, nuts, and tailpieces (stainless steel) 
• (10) Black plastic faucet flanges 
• (10) Black plastic tap handles 
• (2) stainless steel drip trays: 20” x 5” 
• (80’) Beer hose — 3⁄16” thick wall 
• (2) Dual-gauge CO2 regulators 
• (1) Dual-gauge beer gas regulator 
• (3) Regulator cage guards (optional) 
• (10) Plastic CO2 regulator to tank washers 
• (2) CO2 gas manifolds (each with 5 or 6 outlet flared shutoff valves with back-flow prevention) 
• (1) SS tee splitters (3 way or 4 way)  – optional 
• (12) “Beer In” Cornelius keg connectors – 1⁄4” Flare end (ball lock style) 
• (6)  “Beer In” Cornelius keg connectors – 1⁄4” Flare end (pin lock style) 
• (12) “Gas in” Cornelius keg connectors – 1⁄4” Flare end (ball lock) 
• (6) Gas In Cornelius keg connectors – 1⁄4” Flare end (pin lock) 
• (50) 1⁄4” female hose end flare fittings 
• (50) Oetiker stainless steel step less hose clamps (for 3⁄8” thick wall beer line) 
• (80’) 1” x 3” solid oak trim hardwood 
• (40’) 1” x 6” solid red oak (draft towers and tank cart) 
• (4) 1⁄2” x 4’ x 8’ clear premium oak-veneered plywood 
• (24) Premium-grade 8’ x 2” x 4” pine or maple 
• (1) Large tube aquarium sealant 
• 20” water filter with clear acrylic housing (Pentek 3G — no: 150568) 
• (2) SS tower cylinders (1/8” x 6 1/2 x 10”) 
• (2) 3⁄8” threaded rod, nuts and washers (for SS cylinder attachment) 
• (4) 1” x 1” x 10” Aluminum cross members (for SS cylinders attachment) 
• (10) 5⁄16” T-Nuts (to secure bar top to the fold out base) 
• (10) 5⁄16” x 2” hex head bolts and washers 
• Assorted screws, nails, staples as needed. 
• (1 qt./1 L) Dark red wood stain — color: Merlot (Olympic) 
• Waterproof wood glue – (Titebond 3) 
• (2) Locking slide bolt latches (secures base when closed) 
• (2 qt./2 L) marine spar urethane 
• (25–35) Cornelius kegs of your finest homebrewed beer (5 gallons/19 each)
*** THIS IS THE MOST IMPORTANT PART *** 
• (2) Very large plastic tubs (US Plastics) 
• 3⁄4 plywood double for bases to tub carts 
• (8) non-swivel 8”-10” pneumatic wheels (Harbor Freight Tools) 
• (16) 5⁄16” x 1 1⁄2” bolts, nuts, washers (secure wheels to tub carts)
Step by Step

Meet Junior
Junior is a serving platform with a 7-foot (2.1-m) bar front. It has 11 taps arranged into two “Irish coffin” towers, each with five taps, and a central tap run through a Randall. The kegs reside under the bar, contained in rolling carts that make them easy to swap out. The gas cylinders are housed in a cart that fits between the two keg carts. Each tower has its own CO2 cylinder. The whole bar dissembles easily and the base and bar top fold flat, so they take up relatively little space for transportation and storage.

The Draft Towers
“Irish Coffin” style draft towers are made from solid 1” red oak. Equally spaced holes are drilled into the serving side faces of the draft boxes to accommodate the faucets (as seen in Photo 1) . The tower’s lids remove for access to the faucets, shanks, tail pieces, and hoses (as seen in Photo 2). The interiors of the draft boxes have been coated with several layers of marine grade polyurethane. Interior joints are sealed with aquarium silicone to waterproof the boxes.
Dispensing samples from side by side draft towers permit two pour teams to work simultaneously. Each tower and its taps are totally independent, ensuring that at least one side is pouring at all times.

Each draft tower sits on a 6” (15 cm) diameter stainless cylinder. Inside, another 2 1⁄2” (6.4 cm) diameter cylinder is welded to a cross member (as seen in Photo 3). This inner cylinder is used to run the beer lines through the bar top surface down to the kegs. At the bottom of the large cylinder, a stainless steel plate (with several small holes drilled) has been welded to hold ice. This fabrication was done to permit ice to be poured into the top of the draft towers and down into the cylinders to chill the beer line. As the ice melts it drains through the small drilled holes into the red poly tubs. All good theory, but with continual pouring, the beer does not require additional chilling.
The cylinders sit inside cutout 1” (2.5 cm) oak flanges on the bar top. The draft boxes are bolted (with threaded rod) through the cylinders to the bottom of the bar top. Long aluminum round bar cross members ensure a firm hold.

The Base and Bar Top
The base framework is made from standard sized 2” x 4” pine and is skinned with 1⁄2” oak veneered plywood (as seen in Photo 4).
To attach the bar top to the base holes, T-nuts were installed in the base frame prior to attaching the finish plywood. This allows the bar top to be securely bolted to the base using six hex head bolts.
This lift off bar top is constructed from a 2” x 4” framework and skinned with a 1⁄2” oak-veneered plywood. With the bar top bolted to the base, the structure becomes very rigid and stable. An 1⁄8” hardboard panel screwed to the underside of the bar top supplies a storage area for draft hoses when not connected to the kegs. The bottom surface of the base has 8 strips of HDPE (cutting board) installed to protect the wood from ground moisture, and scratch damage.
The outward faces of the bar base are trimmed with 1” x 4” maple strips and 1⁄4” round molding for a finished look. All wood surfaces are stained Merlot Red. Several coats of spar urethane have been rolled on for protection from the elements and beer.

Tubs and Carts
Large, heavy-duty food service poly tubs are used to hold up to six kegs on ice each. They sit on rolling carts made from 1 1⁄2” marine grade plywood (as shown in Photo 5). Non-swiveling casters with large pneumatic tires were installed to permit the carts to roll in and out to perform keg maintenance without turning the festival site into a mud bog. This works surprisingly well. Sometimes the simplest solutions are the ones that work best.

Gas Cylinder Cart, Tanks and Gas
An oak cart is used to hold the CO2 and beer gas tanks needed to run the draft system (see Photo 6). Donated wood (to build the cart) was originally purchased to construct a baby’s cradle 17 years earlier. It now bears the name “Sam’s Cradle” to pay homage to her. We believe Sam is pleased by this. In use the cart resides between the two keg tubs near the gas manifolds (as seen in Photo 10).

Gas Manifolds
For redundancy, each draft tower has its own dedicated CO2 tank and distribution manifold. Each of the keg’s gas lines are controlled by a shutoff valve with backflow preventer. The two manifolds are bolted side by side to the interior of the bar base, and can be removed for storage and maintenance (see Photo 7). Four additional manifold ports are available for future tap expansion.




The Hopinator
It’s no surprise that we hopheads crave hop flavor! A device called a Randall can be used to infuse fresh hop flavor into any beer. Most often, it is used when pouring IPAs and pale ales. Using a modified water filter housing, the canister is filled with fresh aroma hops (such as Simcoe or Cascades) and the homebrew is pushed by CO2 pressure through a filter bed of hops immediately before the pour. (The idea for, and name of, the Randall originated with the Dogfish Head brewery.) Unfortunately, many Randalls exhibit foaming and flow issues that force their operators to continuously adjust the CO2 pressure, hop quantity, and hose length before giving up and abandoning its use, or pouring the beer into a large pitcher for sampling once the foam dissipates. A redesign of this system was needed to overcome the obstacles. The Hopinator, as we call it, is the result of that redesign effort. Several design features were employed to improve overall function, ease of use and to reduce foaming.
The beer enters the canister through a custom-machined stainless steel tube. Tube holes are concentrated near the base to force the beer to filter through most of the hops. The Hopinator uses a 9-foot (~3-m) length of thick wall beer line. The beer hose is wrapped around the large diameter support shaft (as seen in photo 11). Extreme efforts were made to keep the beer line from making any abrupt turns, which might cause turbulence. I think it’s a great design, but don’t just take my word for it, it was one the winners in the 2008 Popular Mechanics DIY Rally Competition. The Hopinator can also be built as a stand-alone project. (See the December 2008 issue of BYO for instructions to build this project.)

System Setup Portability And Storage
This entire system was designed to disassemble and fold to make it as portable as possible. The draft towers and stainless steel cylinder pedestals are attached using threaded rod and cross members. The bar top attaches to the base with bolts screwed into T-Nuts installed in the base. The sides of the bar base fold in on three heavy duty door hinges, and lock to the base with slide bolt locks (see Photo 8). A simple (wooden 2” x 4”) upright cradle ensures the bar top and base are safely stored until needed (see Photo 9).
To recap, our serving platform (Junior) has a 7-foot (2.1-m) bar front and 11 taps. The taps are arranged into two “Irish coffin” towers, each with five taps, and a central tap run through a Randall, which we call the Hopinator. The kegs reside under the bar, contained in rolling carts that make them easy to swap out. The gas cylinders are housed in a cart that fits between the two keg carts. Each tower has it’s own CO2 cylinder. The whole bar dissembles easily and the base an d bar top fold flat, so they take up relatively little space for transportation and storage
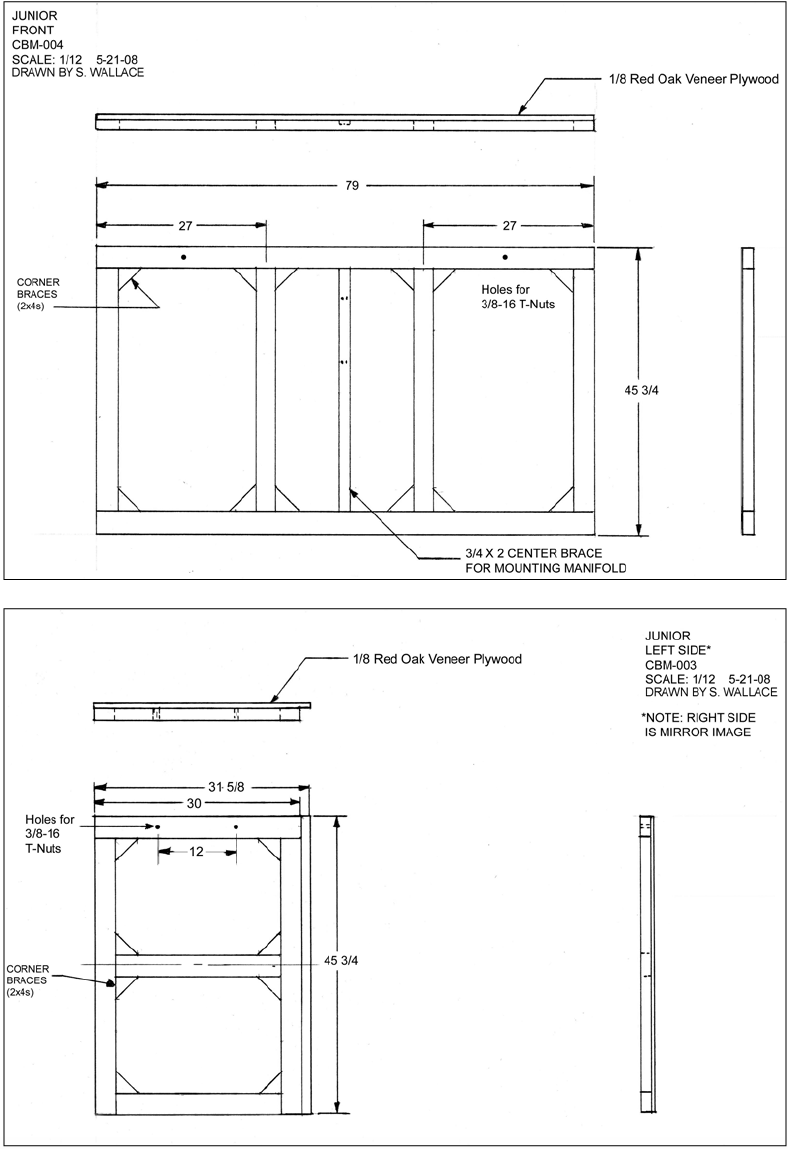
Design Drawings
The details and dimensions of Junior can be seen in the design drawings, drawn by Carolina BrewMaster Scott Wallace.
The scale of each drawing is provided and all measurements are given in inches.



From Plans to Performance
Many have asked how it performed on festival day? We think better than expected! Junior was well-behaved and served up the homebrew in style.